Détails de l'archive
| Titre |
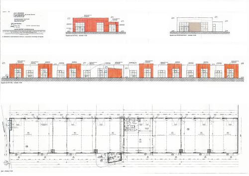
Bâtiment industriel
Origine du titre : Enquêté |
|---|---|
| Note | 227, route de la Fénicière |
| Mots Clé | architecture industrielle, usine, atelier ; carte et plan ; |
| Localisation |
Sallertaine
(Plus d'informations sur Wikipedia)
Vendée (Plus d'informations sur Wikipedia) France (Plus d'informations sur Wikipedia) |
| Date | 3 novembre 2014 |
Original
| Support original | imprimé |
|---|---|
| Etat | moyen |
Propriété et enquête
| Auteur | Laurent Dupont |
|---|---|
| Propriétaire de l'original | LEGAY S. |
| Nature du dépôt | Don |
| Enquête | TV Vendée pour l'émission Comme Toujours |
| Collection(s) | Témonia-Ethnodoc et Arexcpo ; |
| Fonds | Arexcpo en Vendée ; |
Conservation numérique
| Conservateur(s) | OPCI-EthnoDoc ; |
|---|---|
| Cote de conservation | 085_01_2021_5119 |
| Format numérique | JPEG et TIF |
Conservation physique
Inventaire et consultation
| Clé du document | 3228095 |
|---|---|
| Inventaire | 2021 - 5119 |
| Cote de consultation RADdO | 085_01_2021_5119ic |
| Catégorie | Iconographie |
| Niveau de consultation | consultable |
| Responsable de saisie | Témonia-Ethnodoc |
| Format de consultation | JPEG (.jpg) |
| Lien de l'extrait / miniature numérique | https://raddo-ethnodoc.com/archive/3228095 [QR Code] |