Détails de l'archive
| Titre |
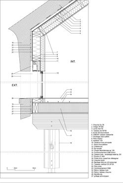
Plan - Détail on wall, du Centre Beautour
Origine du titre : Enquêté |
|---|---|
| Mots Clé | carte et plan ; architecture industrielle, usine, atelier ; architecte, architecture ; musée, écomusée, exposition, ; |
| Localisation |
Roche-sur-Yon (La)
(Plus d'informations sur Wikipedia)
Vendée (Plus d'informations sur Wikipedia) France (Plus d'informations sur Wikipedia) |
| Date | Entre 2010 et 2019 |
Original
| Support original | numérique |
|---|---|
| Etat | moyen |
Propriété et enquête
| Auteur | Guinée-Potin Architectes |
|---|---|
| Propriétaire de l'original | Guinée-Potin |
| Nature du dépôt | Prêt pour numérisation |
| Enquête | Réalisation d'une enquête pour une production d'un QR Code |
| Collection(s) | Témonia-Ethnodoc et Arexcpo ; |
Conservation numérique
| Conservateur(s) | OPCI-EthnoDoc ; |
|---|---|
| Cote de conservation | 15026813 |
| Format numérique | JPEG et EPS |
Conservation physique
Inventaire et consultation
| Clé du document | 225136 |
|---|---|
| Inventaire | 2015 - 3347 |
| Cote de consultation RADdO | 085_01_2015_3347ic |
| Catégorie | Iconographie |
| Niveau de consultation | consultable |
| Responsable de saisie | Témonia-Ethnodoc |
| Format de consultation | JPEG (.jpg) |
| Lien de l'extrait / miniature numérique | https://raddo-ethnodoc.com/archive/225136 [QR Code] |