Détails de l'archive
| Titre |
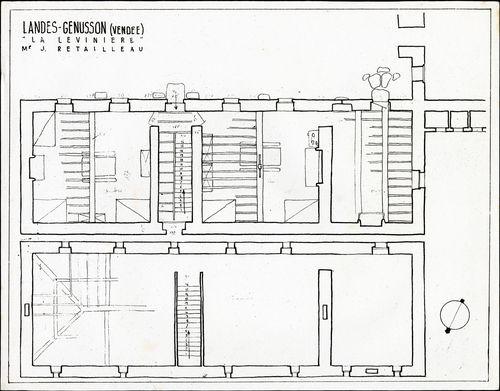
La Lévinière, logement, selon Jean Bossu
Origine du titre : Enquêté |
|---|---|
| Note | plan commandés par Georges-Henri Rivière pour le MNATP |
| Mots Clé | architecte, architecture ; bâtiment(s) agricole(s) ; maison traditionnelle ; carte et plan ; |
| Localisation |
Landes-Genusson (Les)
(Plus d'informations sur Wikipedia)
Vendée (Plus d'informations sur Wikipedia) France (Plus d'informations sur Wikipedia) |
| Date | 1945 |
Original
| Support original | dessin |
|---|---|
| Etat | moyen |
Propriété et enquête
| Auteur | Jean Bossu |
|---|---|
| Propriétaire de l'original | Arexcpo en Vendée |
| Nature du dépôt | Don |
| Enquête | EthnoDoc et Arexcpo dans le cadre des activités courantes des membres des associations |
| Collection(s) | Témonia-Ethnodoc et Arexcpo ; |
| Fonds | Arexcpo en Vendée ; |
Conservation numérique
| Conservateur(s) | OPCI-EthnoDoc ; |
|---|---|
| Cote de conservation | 085_01_2019_0598 |
| Format numérique | JPEG et EPS |
Conservation physique
Inventaire et consultation
| Clé du document | 289598 |
|---|---|
| Inventaire | 2019 - 598 |
| Cote de consultation RADdO | 085_01_2019_0598ic |
| Catégorie | Iconographie |
| Niveau de consultation | consultable |
| Responsable de saisie | Témonia-Ethnodoc |
| Format de consultation | JPEG (.jpg) |
| Lien de l'extrait / miniature numérique | https://raddo-ethnodoc.com/archive/289598 [QR Code] |